Confira ideias de layout para banheiros pequenos que não comprometem o conforto ou a funcionalidade.
Espaços pequenos podem ser um desafio de design, mesmo para arquitetos. Se você tem um espaço grande, as possibilidades são infinitas. No entanto, layouts para lavabos ou banheiros pequenos que não comprometem o conforto ou a funcionalidade exigem habilidade e experiência.
Então, como vamos projetar um layout de banheiro que otimize totalmente o seu espaço? Descubra nesse artigo, onde compartilhamos ideias interessantes para layout de banheiros pequenos.
Quatro pilares de ideias de design para um layout de banheiro pequeno
Existem quatro critérios básicos que regem a forma como qualquer layout é construído. Vamos aplicá-los em um banheiro pequeno de tamanho padrão, com pouco mais de três metros quadrados de dimensão. Em seguida, vamos organizar as peças para que a área fique mais confortável e espaçosa.
- Alinhe os acessórios do banheiro


Coloque seus itens de banheiro mais pesados, como o vaso sanitário, a pia do banheiro e o chuveiro ou a banheira em uma fileira. A nova distribuição ordena visualmente o espaço, permitindo percebê-lo em toda a sua extensão, mesmo se tratando de um espaço pequeno.
Na verdade, pode-se trocar o lugar de um chuveiro ou de um vaso sanitário, mas essa reforma vai exigir novas instalações hidráulicas.
Se você observar a imagem anterior dos dois layouts, poderá ver três lacunas vazias no primeiro. Mas não se deve desperdiçar espaço em banheiro pequeno. Observe na nova planta como há apenas um espaço maior. Ao alinhar as peças, criamos um grande caminho para acessar os itens de forma muito mais intuitiva e funcional.
- Mantenha itens pesados e grandes no fundo do banheiro
Colocar as peças mais volumosas, como o chuveiro, longe da entrada é uma das melhores maneiras de criar a ilusão de mais espaço no layout do seu banheiro pequeno.

.
Este exemplo mostra claramente que, ao colocar o chuveiro em segundo plano, fazemos com que a entrada pareça duas vezes maior.
- Mantenha uma continuidade
A disposição dos acessórios de banheiro altera a percepção do espaço. Os banheiros exigem espaço para toalhas, maquiagem, loções, sabonetes e papel higiênico – sem falar no espaço para esconder seus produtos de limpeza e guardar seu secador de cabelo. Felizmente, existe uma solução: usar o espaço das paredes. Exemplo: em vez de pendurar um espelho sobre a pia, use um armário com espelho.

- Aproveite as transparências
Um box de vidro transparente é uma aposta muito melhor do que portas de vidro fosco ou uma cortina de chuveiro. Dessa forma, tem-se a impressão de que o banheiro é mais amplo.
Agora que cobrimos os quatro pilares básicos para projetar um layout de banheiro pequeno, vamos dar uma olhada em suas várias distribuições.

Banheiro Afeto: compre o projeto deste banheiro clicando aqui.
Quatro distribuições básicas de banheiro
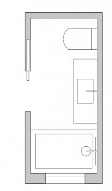
- Banheiro longo e estreito
A melhor distribuição do espaço é aquela que tem os elementos alinhados para permitir uma melhor circulação. Por exemplo, um espaço para chuveiro de parede a parede no fundo dará a impressão de que o banheiro é mais amplo. Certifique-se de que o vaso sanitário e a pia deixem espaço suficiente para a porta abrir. Outro recurso útil é o espelho do banheiro. Use-o para adicionar espaço visual.
Este arranjo também é o mais barato para reformas, pois todos os canos de água são colocados na mesma parede.
Existem algumas ideias de layout de banheiro pequeno que podem dar a ilusão de espaço quando seu banheiro é muito apertado. Por exemplo: pode ser usado um ladrilho mais escuro na parede do fundo ou rebaixar o teto se estiver muito alto (para evitar o “efeito tubo”).

- Banheiro amplo e curto
Os critérios para a distribuição são semelhantes aos do layout anterior. Primeiramente, devemos alinhar as peças para melhor circulação. O chuveiro deve ser colocado de lado (de parede a parede) por conveniência – e porque visualmente alonga o lado curto. O que vai variar, de acordo com o posicionamento da porta, será a posição do vaso sanitário e da pia.
A regra básica é colocar a pia na frente da porta, seja de um lado ou centralizada. Na primeira imagem de exemplo, a pia está centralizada, com o vaso sanitário de um lado e o chuveiro do outro. No segundo, a pia fica no canto.
A razão é que a pia deve ser a primeira coisa que seus olhos vão quando você abre a porta para mostrar o reflexo no espelho. Isso não só faz com que o banheiro pareça mais espaçoso e esteticamente agradável, mas também nos permite abrir a porta sem esbarrar no vaso sanitário, porque a pia tem menos profundidade que as outras peças.



DICA: Se for economicamente viável, uma porta de correr centralizada é muito mais interessante e conveniente do que uma porta de canto. Seu banheiro parecerá maior e ficará melhor distribuído.
- Banheiros em forma de L
Banheiros em forma de L são relativamente fáceis de distribuir. Em um banheiro em forma de L, você deve considerar colocar uma pia de parede em frente à porta. Se possível, coloque o chuveiro no lado mais curto e o vaso sanitário do outro lado da pia. Pode-se também colocar o vaso sanitário e um pequeno chuveiro do outro lado da pia, de parede a parede.


- Às vezes, dependendo do layout do restante do banheiro e se o L permitir, você pode distribuir o cômodo conforme a planta abaixo. A pia fica no canto onde fica a entrada, depois o vaso sanitário e no fundo do L, de parede a parede, fica o chuveiro.

4. Diretrizes básicas de layout para banheiros quadrados
Posicione os principais elementos (vaso sanitário, pia e chuveiro) estrategicamente para otimizar o espaço.
Agrupe elementos relacionados para facilitar o uso e minimizar a movimentação desnecessária.
Maximize a área de circulação mantendo pelo menos 60 cm de espaço livre entre os elementos.
Aproveite os cantos para instalar prateleiras ou armários de canto.
Use divisórias para separar áreas úmidas e secas.
Considere portas de correr ou dobradiças para economizar espaço.
Priorize o armazenamento eficiente com gabinetes, prateleiras e armazenamento vertical.
Garanta uma iluminação uniforme em todo o banheiro, incluindo luzes de tarefa sobre a pia e o espelho.
Assegure uma boa ventilação com janelas ou ventilador de exaustão para evitar umidade e mofo.

5- Layout de lavabo

Os componentes sanitários neste projeto de banheiro estão dispostos em duas paredes internas distintas. Em relação à ventilação do banheiro e estilos de portas, há uma variedade de opções.

Esperamos que essas dicas e truques de um arquiteto ajudem você na utilização máxima do espaço do banheiro, bem como na economia de espaço. Com essas estratégias e ideias de layout, um banheiro pequeno não precisa ser um problema. Se você planejar bem, poderá ter um banheiro pequeno bonito, moderno e funcional.
Quer reformar todo seu banheiro e precisa obter uma estimativa de custo personalizada? Saiba quanto vai custar a reforma do seu banheiro clicando aqui!
17.10.2022